Poniedziałek,  13 Kwietnia 2026, 103 dzień roku.
Włocławek, ul. P.O.W. 22A lok.7 (I piętro), tel: 692-706-980 602-495-480, e-mail: biuro@nkujawskie.pl

Szukaj ofert

Rodzaj nieruchomości:
Lokalizacja / miejscowość:
Lokalizacja / osiedle - dzielnica:
Cena:
Cena za m2:
Powierzchnia:
Nr oferty:

Kursy średnie NBP

z dnia 2026-04-10
EUR4,2534
USD3,6396
CHF4,6062
GBP4,8848

Mieszkania - sprzedaż

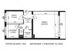
MIESZKANIE 2-POKOJOWE 52,63M2 Z BALKONEM, VIII PIĘTRO, WŁOCŁAWEK - CENTRUM

Włocławek, Centrum
Ilość pokoi: 2 Metraż: 52,63 m²Cena: 240.000 PLN / 56.425 €Numer oferty: 1101Pośrednik prowadzący sprzedaż: , nr licencji zawodowej:
Na  sprzedaż zlokalizowane w Centrum Miasta Włocławek, rozkładowe dwupokojowe mieszkanie o powierzchni opodatkowanej 52,63m2, położone na ósmym piętrze w XI-piętrowym bloku, stanowiące odrębną nieruchomość z Księgą Wieczystą. Oferowany lokal mieszkalny składa się z: dużego pokoju dziennego o pow. ok. 24,87m2 z dużym balkonem (loggia), mniejszego pokoju o pow. 7,53m2 (sypialni), widnej kuchni o pow. 6,34m2 z umeblowaniem, łazienki z wanną, pomieszczenia WC oraz przedpokoju o pow. 6,28m2 z szafą ubraniową w zabudowie.

Standard wykończenia wnętrza mieszkania: na podłodze: w pokojach i przedpokoju mozaika parkietowa, w kuchni wykładzina PCV, w łazience i WC terakota; ściany i sufity: sufity malowane, ściany cekolowane - malowane, w małym pokoju częściowo tapeta, glazura ścienna w kuchni i łazience; stolarka okienna: PCV oraz  drewniana w dużym pokoju z roletami zewnętrznymi na balkonie, dodatkowo rolety wewnętrzne na oknach.

Lokal mieszkalny zaopatrzony w następujące media i usługi: energia elektryczna (licznik), ciepła i zimna woda oraz kanalizacja z sieci miejskiej (liczniki), centralne ogrzewanie z sieci miejskiej (podzielniki kosztów), gaz ziemny (ryczałt od osoby), telewizja kablowa oraz internet (przyłącze SatFilm - do uruchomienia wg wybranego pakietu).

W ramach powierzchni użytkowej - opodatkowanej mieszkania 52,63m2 - jest piwnica o pow. 4,49m2.

Budynek mieszkalny zlokalizowany w terenie zurbanizowanym, zagospodarowanym z pełną infrastrukturą techniczną. W sąsiedztwie budynki mieszkaniowe wielorodzinne, sklepy spożywcze, apteka i usługi dla mieszkańców, blisko przystanki komunikacji miejskiej. Przed blokiem miejsca postojowe dla samochodów osobowych mieszkańców i gości.

Przedmiotem sprzedaży lokal mieszkalny stanowiący odrębną nieruchomość z Księgą Wieczystą (pełna własność z udziałem w budynku oraz gruncie) bez  obciążeń, do zasiedlenia od dnia zapłaty ceny sprzedaży.

Preferowana sprzedaż nieruchomości za środki własne nabywcy (bez kredytu)!

Miesięczna opłata czynszowa do Wspólnoty Mieszkaniowej aktualnie ok. 527,00zł (z zaliczką na centralne ogrzewanie wraz z ryczałtem za gaz ziemny od 1 osoby).

Kontakt ws oferty nieruchomości: MIROSŁAW WYSOCKI, tel. 692-706-980.

Aktualna ofertowa cena sprzedaży 240.000,00 zł plus wszelkie koszty sprzedaży - nabycia płatne przez kupującego.

---

Nota prawna: Prezentowane na stronie informacje, opis i zdjęcia nieruchomości, nie stanowią oferty w rozumieniu przepisów  art. 66 i następnych polskiego kodeksu cywilnego, lecz mają jedynie charakter informacyjny i podlegają aktualizacji oraz stanowią zaproszenie osoby zainteresowanej, do złożenia za naszym pośrednictwem- oferty najmu nieruchomości. Dokładamy starań, aby przedstawiane na stronie dane, były zgodne ze stanem prawnym i faktycznym, jednakże niektóre dane dotyczące nieruchomości mogły zostać uzyskane na podstawie oświadczeń właściciela nieruchomości i mogą wymagać dodatkowej weryfikacji przez potencjalnego najemcę. Wszelkie zdjęcia, grafiki, czy teksty zamieszczone na tej stronie, objęte są ochroną praw autorskich majątkowych i osobistych, stanowią jednocześnie własność naszej Firmy w świetle prawa autorskiego. Ich wykorzystywanie, kopiowanie lub rozpowszechnianie, bez pisemnej zgody autora -stanowi naruszenie praw autorskich.

Copyright © 2026, Nieruchomości Kujawskie, Włocławek, ul.Polskiej Organizacji Wojskowej nr 22A, lok.7